Politique de protection des renseignements personnels

Ce site utilise des témoins de navigation afin de vous offrir une expérience optimale.

En savoir plus

/ Logements/1420, Line-Rainville, app.302

Retour à la liste
Affichage Carte Photo
Nouveau

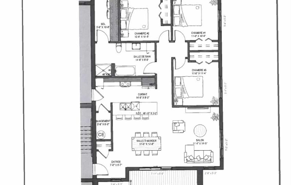
1420, Line-Rainville, app.302

1420, Line-Rainville, app. 302, Joliette QC J6E 8N6


  • TypeCondos
  • Loyer1525$ / mois
  • Dimensions
  • VilleJoliette
  • Disponibilité1 juin 2026
  • EmplacementVoir sur Google Map

Commodités

  • Air climatisé
  • Stationnement
  • Remise

À proximité de

  • Parc ou espace vert
  • Arrêt d’autobus
  • Centre commercial
  • École

Description

NOUVELLE CONSTRUCTION – DISPONIBLE JUIN2026

Nous vous proposons de magnifiques 5 ½ au troisième étage, conçus pour offrir confort, espace et tranquillité dans un immeuble moderne,  que ce soit pour une famille, un couple ou un professionnel.

 

Superficie : 1245 pi²

Grand balcon vitré (16'8" x 9'0")

Planchers flottants de qualité

Air climatisé et échangeur d’air pour un confort optimal en toute saison

Entrée pour lave-vaisselle

Entrées laveuse et sécheuse

Installation pour aspirateur central

Accès direct au terrain

Remise extérieure

Stationnement inclus et déneigé si vous possédez un véhicule

Enquête de pré location obligatoire

Pour toute information ou pour réserver votre logement
450-759-7097

Interessé par
ce logement?
Planifier une visite
Pour assistance et prise de rendez-vous:

(450) 759-7097

Ce logement
vous intéresse?

Veuillez noter qu’un délai de réponse de 48 heures peut être engendré en raison d’un achalandage élevé. N’hésitez pas à nous joindre par téléphone ou en personne, 7 jours sur 7.

Envoyer

Merci! Votre demande a été reçue.

Désolé, une erreur est survenue.

Assitance

(450) 759-7097

461, rue de Lanaudière
Joliette, QC J6E 3M3