/ Logements/820, De Lanaudière, app. 205





820, De Lanaudière, app. 205
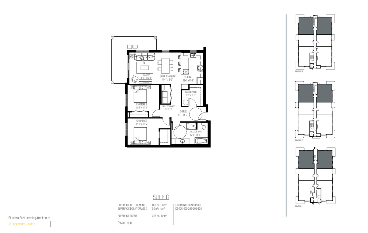
820, De Lanaudière, app. 205, Joliette QC J6E 3N3
- TypeCondos
- Loyer1300$ / mois
- Dimensions4½
- VilleJoliette
- DisponibilitéImmédiatement
- EmplacementVoir sur Google Map
Commodités
- Air climatisé
- Stationnement
- Remise
- Ascenseur
À proximité de
- Parc ou espace vert
- Arrêt d’autobus
- Centre-ville
- École
Description
NOUVELLE CONSTRUCTION JUILLET 2025
Immeuble de 18 logements sur 3 étages
SUITE C
-
4 1/2 au deuxième étage
-
1055 pi2
-
Plancher flottant
-
Armoires au goût du jour
-
Ascenseur dans l'immeuble
-
Salle de bain équipée d'une baignoire et d'une douche séparée
-
Air climatisé
-
Entrée lave-vaisselle
-
Entrée pour la laveuse et la sécheuse
-
Superficie de la terrasse 150 pi2
-
Profitez de nos remises en location à 45 $ Premier arrivé, premier servi!
-
Animaux interdits