Politique de protection des renseignements personnels

Ce site utilise des témoins de navigation afin de vous offrir une expérience optimale.

En savoir plus

/ Logements/800, De Lanaudière, app. 206

Retour à la liste
Affichage Carte Photo
Nouveau

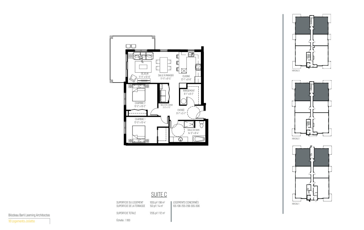
800, De Lanaudière, app. 206

800, De Lanaudière, app. 206, Joliette QC J6E 3N3


  • TypeCondos
  • Loyer1300$ / mois
  • Dimensions
  • VilleJoliette
  • DisponibilitéImmédiatement
  • EmplacementVoir sur Google Map

Commodités

  • Air climatisé
  • Stationnement
  • Remise
  • Ascenseur

À proximité de

  • Parc ou espace vert
  • Arrêt d’autobus
  • Centre-ville
  • École

Description

NOUVELLE CONSTRUCTION JUIN 2025

Immeuble de 18 logements sur 3 étages

 SUITE C


  • 4 1/2 au deuxième étage

  • 1055 pi2

  • Plancher flottant

  • Armoires au goût du jour

  • Ascenseur dans l'immeuble 

  • Salle de bain équipée d'une baignoire et d'une douche séparée

  • Air climatisé

  • Entrée lave-vaisselle

  • Entrée pour la laveuse et la sécheuse

  • Superficie de la terrasse 150 pi2 

  • Profitez de nos remises en location à 45 $ Premier arrivé, premier servi! 

  • Animaux interdits

POUR TOUTES INFORMATIONS VEUILLEZ COMMUNIQUER AU BUREAU D'INFO-LOGEMENT (450) 450-7097

Interessé par
ce logement?
Planifier une visite
Pour assistance et prise de rendez-vous:

(450) 759-7097

Ce logement
vous intéresse?

Veuillez noter qu’un délai de réponse de 48 heures peut être engendré en raison d’un achalandage élevé. N’hésitez pas à nous joindre par téléphone ou en personne, 7 jours sur 7.

Envoyer

Merci! Votre demande a été reçue.

Désolé, une erreur est survenue.

Assitance

(450) 759-7097

461, rue de Lanaudière
Joliette, QC J6E 3M3